Revizní dvířka pod obklad do zdiva RDSzo 200x200 GKBi US, zapuštěný obklad 10 mm
Popis
Revizní dvířka pod obklad do zdiva RDSzo 200x200x12,5 GKBi US, obklad zapuštěný 10 mm
Revizní dvířka RDSzo 200x200 GKBi US jsou určeny pro montáž do zděné stěny. Výplň dvířek je tvořena impregnovanou SDK deskou (GKBi - zelená), upevněnou pomocí samovrtných šroubů, která je zapuštěná do hliníkového rámu vnitřního křídla jako podklad pro keramický obklad. Dvířka lze obložit obkladem do tloušťky 10 mm (lepidlo + obklad). Rámeček zůstává viditelný a přiznaný.
Použití: Revizní dvířka pod obklad jsou určena do zděné stěny. Dvířka umožňují rychlý a pohodlný přístup k revizním otvorům, jako jsou uzávěry vody, plynu, vzduchotechniky atd. Vhodné do místností a prostorů s vysokou vlhkostí, jako jsou koupelny, toalety apod. Mechanismus otevírání, který zajišťuje bezpečné uzavření. Otevírání zatlačením – otevřít a zavřít (tlakový zámek).

Zpracování: Dvířka jsou vyrobeny z hliníkových profilů, které jsou svařovány do venkovního a vnitřního rámu. Křídlo dvířek je osazené impregnovanou sádrokartonovou deskou GKBi o síle 12,5 mm. Kompletní sestava je spojena pomocí pevného pantu a umožňuje tak otevírání křídla dvířek v případě potřeby. Možnost použít dvířka jako pravé i levé. Mezi pohyblivým rámem klapky a pevným rámem je viditelná mezera cca 1,5 mm. Pohodlné otevírání a zavírání je zajištěno tlačnými US zámky, které jsou umístěné na venkovním rámu. Zatlačení na desku vnitřního rámu v místě zámku způsobí vycvaknutí či zacvaknutí západky.
Hlavní výhody modelu:
- Pevný svařovaný rám
- Snadné otevírání a zavírání pomocí tlačného zámku
- Pevně ukotvené křídlo na pantu
- Zapuštěná SDK deska - příprava pro vložení obkladu do 10 mm (lepidlo + obklad)
Montáž: Instalace dvířek se provádí do zděné stěny za pomocí natloukacích hmoždinek skrz venkovní rám nebo montážní pěnou. Univerzální upevnění na pravou nebo levnou stranu otvoru.
Dvířka jsou již vybavena čelní sádrokartonovou deskou o patřičném rozměru. Obklad není součástí.
Z důvodu správného fungování zámků je při montáži potřeba dodržet pravé úhly venkovního rámečku.
Technické parametry:
- materiál: hliník, sádrokartón
- SDK deska: do vlhkého prostředí GKBi – impregnovaná zelená 12,5 mm
- montáž: do zdiva, ytongu
- instalace: pravá i levá
- počet zámků: 2
- otevírání: pant
- možnost obkladu: ano
- max. tloušťka obkladu: 10 mm (lepidlo + obklad)
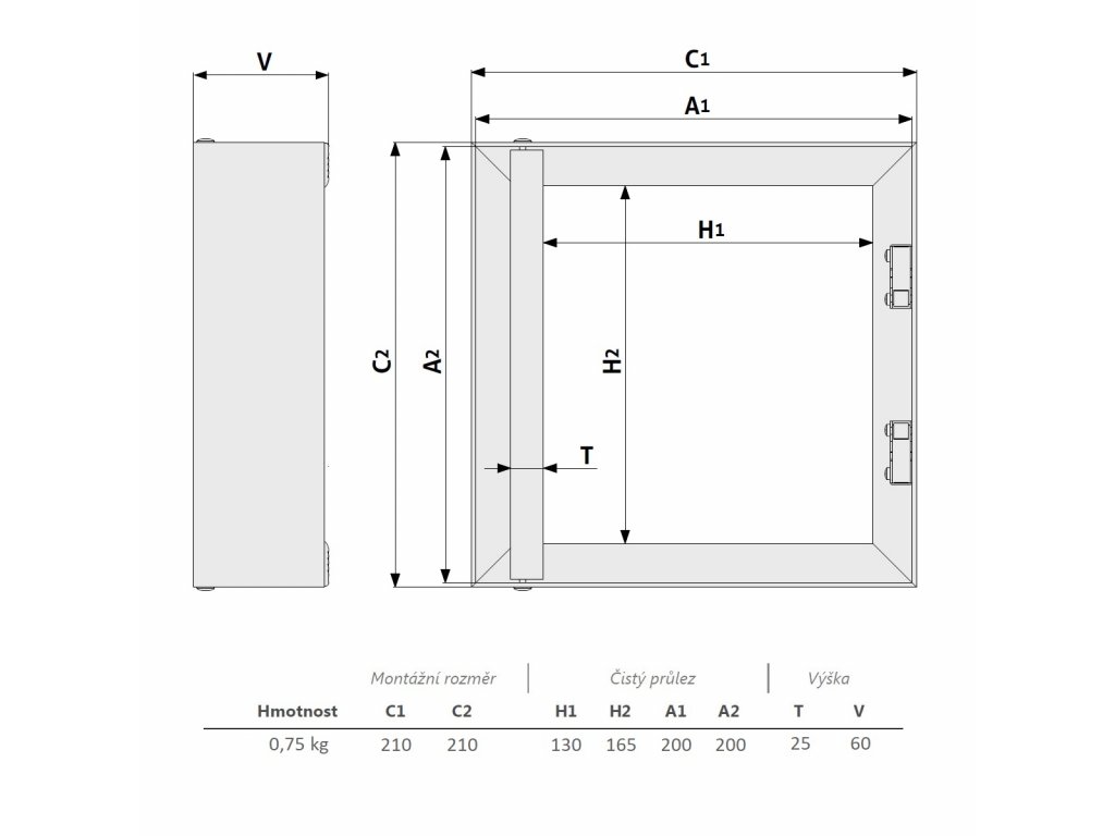
- rozměr: 200 x 200 mm
- hmotnost: 0,75 kg
Podobné produkty
| Hmotnost | 0.75 kg |
| Barva | zelená |
| Materiál | hliník, SDK |
| Rozměr | 200 x 200 mm |
| Protipožární | ne |
| Tloušťka obkladu (?) | 10 mm |
| Vlhkuvzdorná | ano |
| Vzduchotěsná | ne |
| Zavírání | tlačný zámek |
Buďte první, kdo napíše příspěvek k této položce.
Pouze registrovaní uživatelé mohou vkládat příspěvky. Prosím přihlaste se nebo se registrujte.
TAMADEX spol. s r.o.
- adresa: Zbečník 19, 549 31 Hronov, Česká republika
- e-mail: tamadex@tamadex.cz
- web: https://tamadex.cz/
Společnost TAMADEX spol. s r.o. je česká rodinná firma založena v roce 1990, zabývající se kovovýrobou, zejména pak lisařskými prácemi s kooperací pro české a zahraniční společnosti. Od roku 1994 je jedním z dalších výrobních programů firmy i výroba kovových prvků do sádrokartonových konstrukcí. Specializující se na výrobu kovového příslušenství pro sádrokartonové systémy a revizní dvířka v oblasti suché výstavby.
